У Шевченківському районі Львова буде сквер
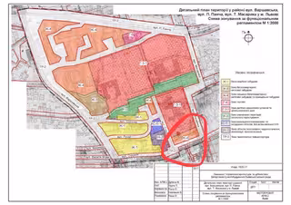
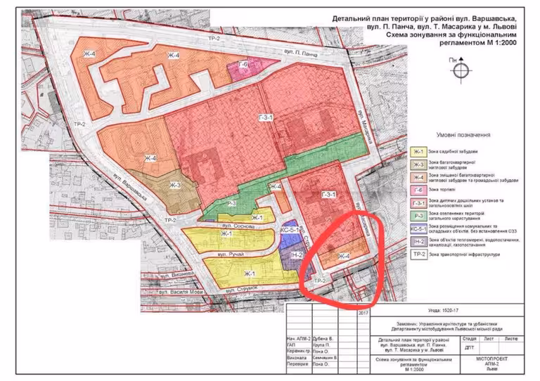
Сьогодні виконком ЛМР прийняв рішення про створення детального плану скверу для мешканців вул. Варшавської, П. Панча, Т. Масарика, Струмок. Про це інформує голова ГО «Варта1» Ігор Зінкевич.
"Створенню детального плану і скверу на вул. Варшавській, Соснові, Масарика - бути!
Рішення виконкому: Прийнято детальний план скверу з поправками до детального плану, місце забудови на вул. Масарика та Струмок до рішення всіх судів - «біла зона» (тобто не визначене зонуванням).
Всім дякую за підтримку! Разом сила!" - йдеться у повідомленні.
varta1.com.ua: Новини
Читайте також
Топ-5 магазинів матраців у Львові: де купити якісний матрац у 2026 році?
Нижче ми зібрали п’ять популярних локацій з широким асортиментом, де львів’яни найчастіше купують матраци.
На Львівщині військові клали бруківку замість служби
Заступника командира обвинувачують у перевищенні влади військовою службовою особою (ч. 5 ст. 426-1 КК України)
На Львівщину повертається загиблий Герой Віктор Гулядик
Воїн загинув 28 вересня 2024 року під час виконання бойового завдання поблизу села Богоявленка Донецької області
Найкоментованіше
- У Луцьку група підлітків напала на військових ТЦК (ВІДЕО)
- Україна пропонує росії продовжити перемир'я після Великодня, – Зеленський
- Військовослужбовці ТЦК у разі небезпеки можуть застосовувати вогнепальну зброю, - нардеп
- До України привезли Благодатний вогонь
- В Україні весь особовий склад одного ТЦК відправили на бойові посади
Коментарі